Opis:
- Snaga (podesiva) EN-2-3-4-5
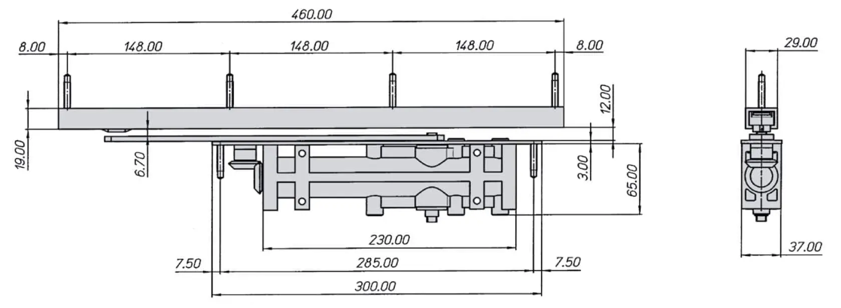
- Ugradni mehanizam
- Za vrata sa maksimalnom širinom od 1100mm i maksimalnom težinom od 80Kg.
- (u maksimalnom otvaranju do 90º širina vrata max 1250 i težina 100 kg)
- Debljina drvenih vrata min 45mm i metalnih vrata min 41mm.
- Regulacija preko 2 nezavisna ventila.
- Ispitano na požar EN1634
- Regulacija brzine zatvaranja između 10º i 120º
- Regulacija konačnog zatvaranja između 0º i 10º
- Napravljen od aluminijuma.
- Uključuje ruku sa kliznom vodilicom.
- Isporučuje se komplet set u kutiji, uključuje sav neophodan materijal za montažu.
Preuzimanja:
Informacije za poručivanje
| Naziv artikla | Šifra |
| SKRIVENI AUTOMAT ZA VRATA 550 EN-2-3-4-5 | 7040425 |


